10套三层乡村小别墅,每一套都是小面宽,再不用担心宅基地小
10套三层乡村小别墅,每一套都是小面宽,再不用担心宅基地小
回到乡下,建一所小屋,
屋前屋后种满瓜果蔬菜,
春天有看不完的花,
夏天有吃不完的水果,
秋天则是金黄的丰收,
冬天白雪落,万物藏,
不畏寒凉的大白菜傲然挺立。
耕自食,顺应时令,悠然闲适,
向晚庭院,倚靠相背,闲话短长,
自以为人间之乐,莫过于此
几时归去,做个闲人,
清闲无事,坐卧随心,
小院清光四射,静谧闲逸。
山头吐月,虫声四起,
月光对酌,微醺而饭,
享受这一派恬淡的乡村生活景象。
这是许多人梦寐以求的
今天给大家介绍10套三层的小面宽乡村小别墅,每一套都适合乡村自建,来看看有没有喜欢的?
第一套
建筑参数:
占地尺寸:9.5米×9.5米
占地面积:90平方米
建筑面积:250平方米
建筑结构:砖混结构
层数:3层
主体预算:35万

效果图

一层平面图

二层平面图

三层平面图
第二套
建筑参数:
占地尺寸:8米×11.7米
占地面积:93平方米
建筑面积:280平方米
建筑结构:砖混结构
层数:3层
主体预算:30万

效果图

一层平面图

二层平面图

三层平面图
第三套
建筑参数:
占地尺寸:9.96米×11米
占地面积:106平方米
建筑面积:320平方米
层数:3层
建筑结构:砖混结构
主体预算:33万

效果图

一层平面图

二层平面图

三层平面图
第四套
建筑参数:
占地尺寸:7.95米×10.75米
占地面积:93平方米
建筑面积:258平方米
建筑结构:砖混结构
层数:3层
主体预算:35万

效果图

一层平面图

二层平面图

三层平面图
第五套
建筑参数:
占地尺寸:7.76米×14.76米
占地面积:114平方米
建筑面积:423平方米
建筑结构:砖混结构
层数:3层
主体预算:50万

效果图

一层平面图

二层平面图

三层平面图
第六套
建筑参数:
占地尺寸:8.8米×10.7米
占地面积:80平方米
建筑面积:210平方米
建筑结构:砖混结构
层数:3层
主体预算:30万

效果图

一层平面图

二层平面图

三层平面图
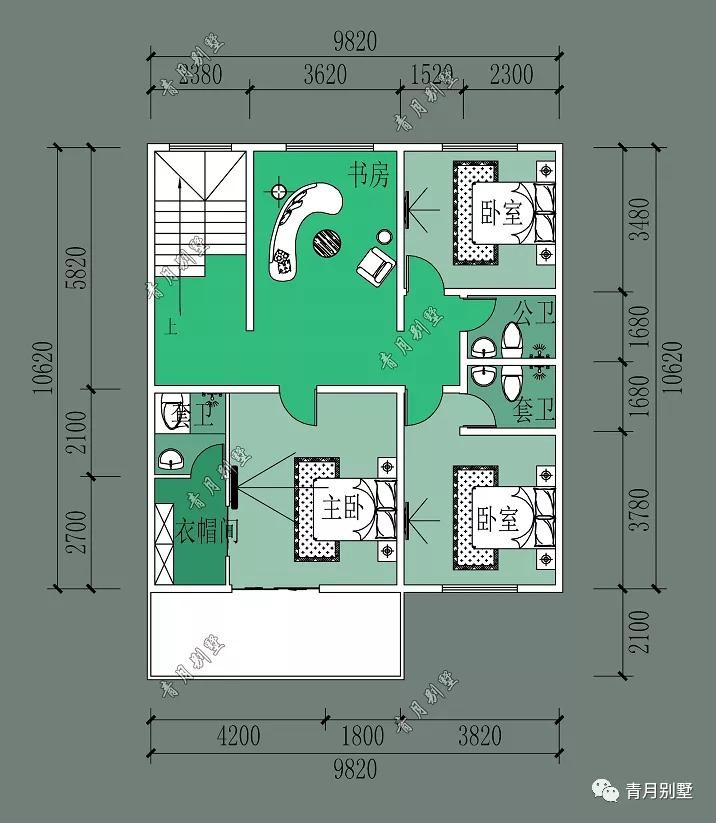
第七套
建筑参数:
占地尺寸:9.82米×10.62米
占地面积:104平方米
建筑面积:200平方米
建筑结构:砖混结构
层数:3层
主体预算:25万

效果图

一层平面图

二层平面图

三层平面图
第八套
建筑参数:
占地尺寸:9.6米×10.8米
占地面积:100平方米
建筑面积:250平方米
建筑结构:砖混结构
层数:3层
主体预算:25万

效果图

一层平面图

二层平面图

三层平面图
第九套
建筑参数:
占地尺寸:9.9米×13米
占地面积:128平方米
建筑面积:280平方米
建筑结构:砖混结构
层数:三层
主体预算:30万

效果图

一层平面图

二层平面图

三层平面图
第十套
建筑参数:
占地尺寸:9.2米×11米
占地面积:100平方米
建筑面积:280平方米
建筑结构:砖混结构
层数:3层
主体预算:30万

效果图

一层平面图

二层平面图

三层平面图
10套小面宽乡村小别墅奉上,每一套面宽都不超过10米,造价30万左右,美观大气又经济实用,有你喜欢的吗?
-
- 大海蛇真的存在?传说全身无鳞片,有3米粗20米长,宛如“水怪”
-
2026-01-05 06:26:58
-
- 叶兆言:写作之外,我是个很无聊的人
-
2026-01-05 06:24:44
-
- 号称最强灵长类动物——银背大猩猩,天生强者,无需锻炼就是猛男
-
2026-01-05 06:22:30
-
- 部分音频直播平台涉黄:每天直播3小时 月入过万
-
2026-01-05 06:20:15
-
- 国家级文物保护单位、4A级旅游景区——北京景山公园
-
2026-01-05 06:18:01
-
- 味道鲜美的9种家常汤菜做法,大人小孩都爱吃!
-
2026-01-05 06:15:46
-
- 催泪瓦斯真的安全吗?重新反思其危险性和合法性
-
2026-01-05 06:13:32
-
- 走进县城看发展:浙江省绍兴上虞区
-
2026-01-05 06:11:18
-
- 动物世界犬种-牛头梗
-
2026-01-05 06:09:03
-
- 4款“中国制造”超跑,零百加速2.7秒只能垫底 你都知道吗?
-
2026-01-05 06:06:49
-
- “斤”我们用了好几千年,为什么同国际接轨后就恰恰等于500克?
-
2026-01-04 09:16:27
-
- 中国交通广播招人啦!对,就是需要你这样的人才!
-
2026-01-04 09:14:13
-
- 翟天临的新瓜:情人节 “时间管理”
-
2026-01-04 09:11:58
-
- 明清时的八府巡按到底是个多大的官?从一品水师提督都要礼让三分
-
2026-01-04 09:09:44
-
- 伦敦大桥“垮”下来?整个英国都在看热闹,伦敦塔桥为何如此重要
-
2026-01-04 09:07:30
-
- 行到水穷处,坐看云起时。20句人间清醒诗词:背下来,终身受益。
-
2026-01-04 09:05:15
-
- 锅炉型号的含义及参数解释
-
2026-01-04 09:03:01
-
- 一拳超人原作版145话:战斗服大发神威,NEO血虐机器人大军
-
2026-01-04 09:00:47
-
- 3.世界名犬介绍之牧羊犬
-
2026-01-04 08:58:32
-
- 地主婆成为革命母亲,一门八烈士,孙子是核潜艇之父
-
2026-01-04 08:56:18



知青廖晓东儿女现状(知青廖晓东丈夫近况)
多地火车站小巷子惊现“站街女”,50元一次,大爷:很常见经常去